• Ponedeljak - Petak: 7:30 - 16:00
  • 063/693-944 Nevenka Radulović, 063/693-291 Daliborka Božić
  • office.kutko@gmail.com

Braće Jovanovića 22A

Info:

Objekat u izgradnji, u ulici Braće Jovanovića 22A..

Zgrada spratnosti Po+Pr+2+povučeni sprat.

Rok za završetak gradnje 01.08.2020.

Objekat smešten u samom centru grada sa kompletno opremljenim kupatilom, hrastovim parketom I klase, aluminijsumskom stolarijom roletnama i komarnicima, video nadzorom, liftom

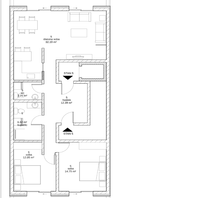
Pogledajte ponudu stanova za ovu lokaciju:

Spratnost:

Kvadratura: